小楼房或独栋别墅出售在Praceta Miguel Lupi
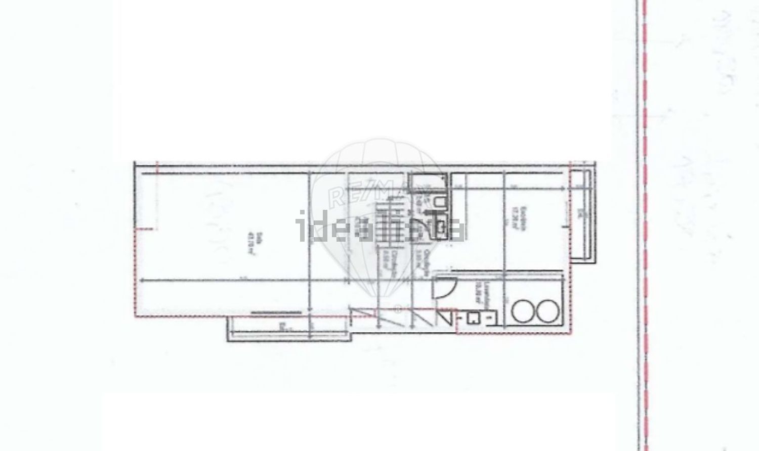
房屋布局设计旨在最大化盈利,目前尚未投入运营,但具备所有相关条件 当前配置(潜在投资) 可容纳T5的组织(无传统房间): 第0层: 2套套房(13平方米和19平方米) 第一层: 客厅+开放空间厨房(19平方米)(总面积整合) 浴室(3平方米) 通往25平方米的露台 理想配置: 本地住宿(Airbnb) 每间房租金 混合产量策略 注:该物业目前尚未运营,但拥有理想的布局和变现特性 适应潜力(简单作品)在减少占用面积后,你可以转换为: 三居室双拼住宅: 创建独立房间 改善区域分离 自有住房的理想解决方案 工程可以按约定的价值进行,甚至可以整合进业务中 重要的附加价值 制造车辆入口的可能性 屋内停车(未来非常重视) 装备 空调 热水器 自动灌溉系统 25平方米的大露台 位置位于拉纳(卡斯凯什): 安静区 通往里斯本和卡斯凯什的交通便利 租赁市场的强劲需求 机遇 多功能房产(投资或住房) 高盈利潜力 小作品的价值化可能性 该地区的差异化产品 立即联系 非常适合寻求保证金+灵活性+收益潜力的投资者具备这种特性的房产需求旺盛且周转迅速 能源率: C ref: C1903/26.
679,000 欧