小楼房或独栋别墅出售在Rua Isaac Rabin

2,900,000 欧

描述

Telheiras, Lumiar

房源编号:34961150   

基本特点

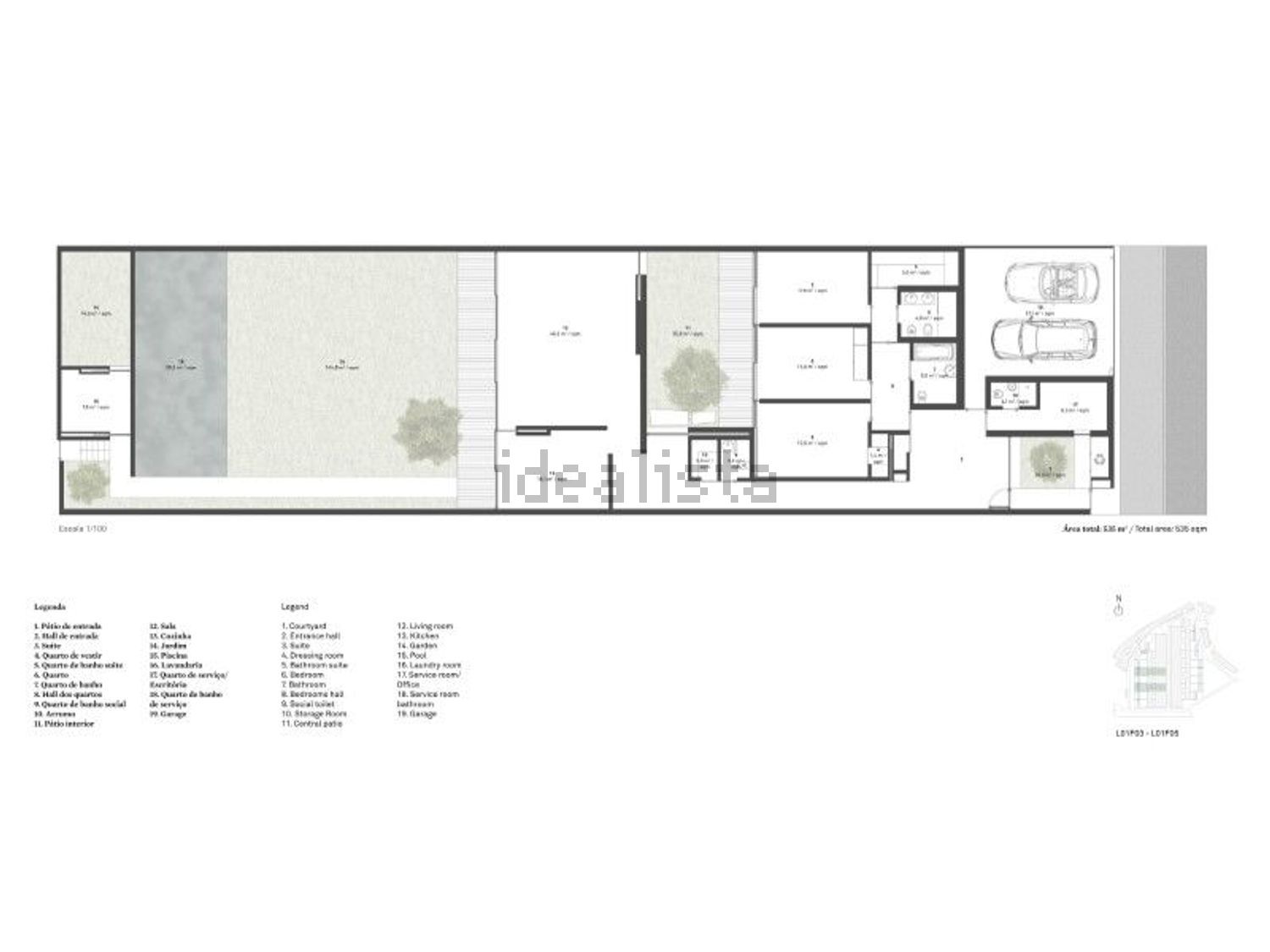
  • 小楼房或独栋别墅
  • 280平方米建筑面积
  • T4
  • 4个卫生间
  • 面积535平方米
  • Parking space included in the price
  • 二手/状态良好

装备

  • 游泳池
  • 花园

能源证书

  • 能源等级:a+

位置

里斯本都会区 里斯本地区 里斯本 Lumiar

中介信息

此信息来自于 中介 发布

姓名:LT Real Estate
电话:+351 21 874 0669
如果您葡语或英语OK(主要是葡语,很多当地人不说英语),并且已经在葡萄牙境内(通常房东不会接听来自境外的国际长途),可自行拨打电话联系。

找我们帮忙

或者您可以添加微信,我们帮您联系(免费的)