公寓 t4出售在Rua Gaivotas em Terra

1,350,000 欧

描述

Expo Sul, Parque das Nações

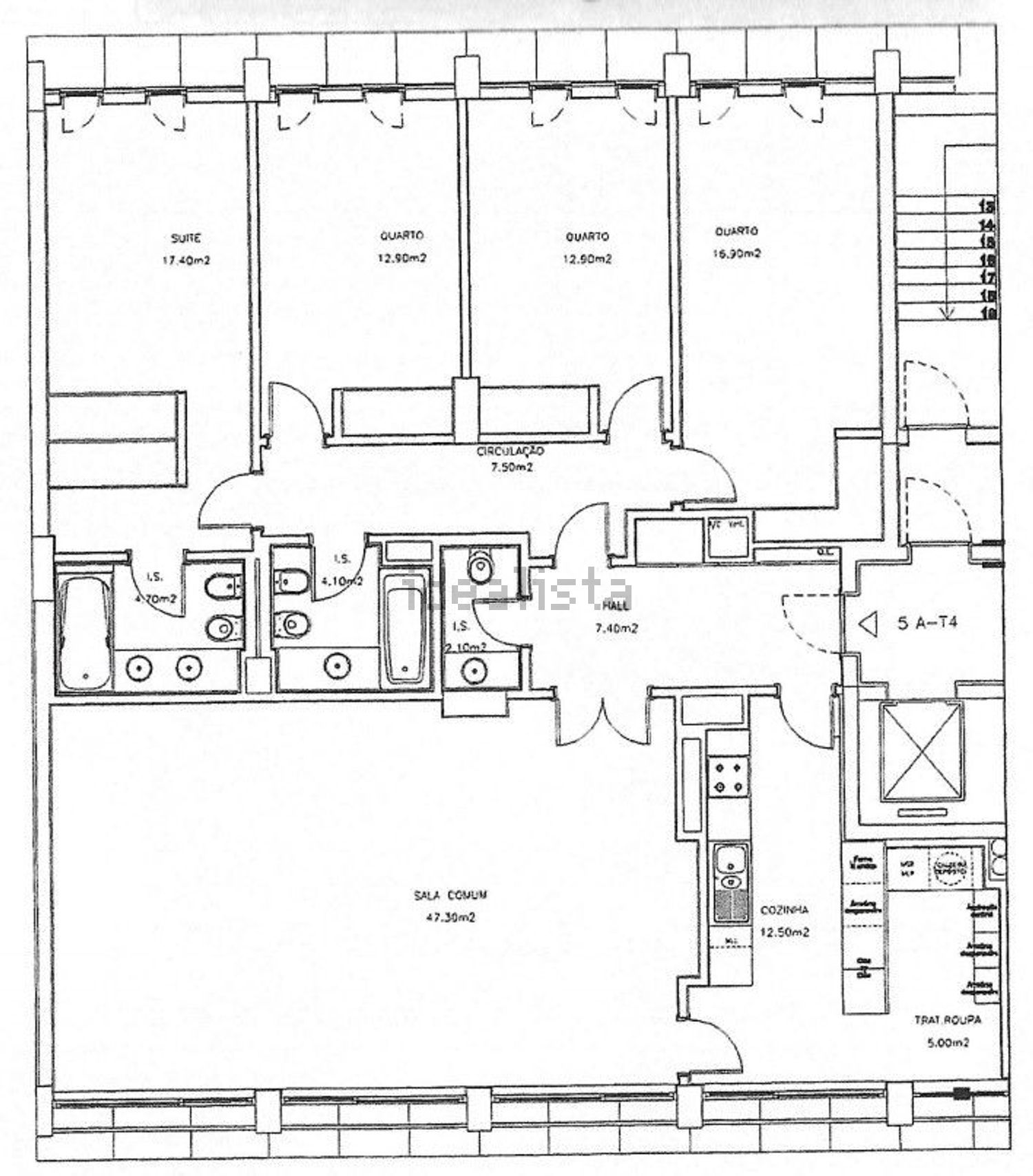
房源编号:34933368    该公寓位于里斯本国家公园的南部,这是该市最抢手的地区之一,当地的便利设施和服务一应俱全,包括超市、医院、学校和码头,并且距离里斯本国际学校不到1公里。此外,附近正在建设一家五星级酒店。该公寓由一位著名的葡萄牙建筑师设计,拥有落地大窗户,采光极佳,可欣赏特茹河的景色。住在这里,您可以享受充足的阳光、开阔的视野和便利的生活方式。公寓状况良好,当然也可以根据您的喜好进行改造。房间/起居空间面积:门厅:7.40平方米走廊:7.50平方米厨房:12.50平方米洗衣区:5平方米客厅:47.30平方米套间卧室:17.40平方米卧室:12.90平方米卧室:12.90平方米卧室:16.90平方米套间浴室:4.70平方米第二间浴室:4.10平方米客用浴室:2.10平方米。接受房地产中介。.

基本特点

  • 223平方米建筑面积, 185平方米可使用
  • T4
  • 3个卫生间
  • Parking space included in the price
  • 二手/状态良好
  • 嵌入式衣柜
  • 储藏室
  • 朝向 北, 南
  • 建在2008

楼房

  • 5层
  • 带电梯

装备

  • 空调

能源证书

  • 能源等级:c

位置

里斯本都会区 里斯本地区 Parque das Nações

中介信息

此信息来自于 中介 发布

姓名:Tardagendada
电话:+351 21 877 2123
如果您葡语或英语OK(主要是葡语,很多当地人不说英语),并且已经在葡萄牙境内(通常房东不会接听来自境外的国际长途),可自行拨打电话联系。

找我们帮忙

或者您可以添加微信,我们帮您联系(免费的)