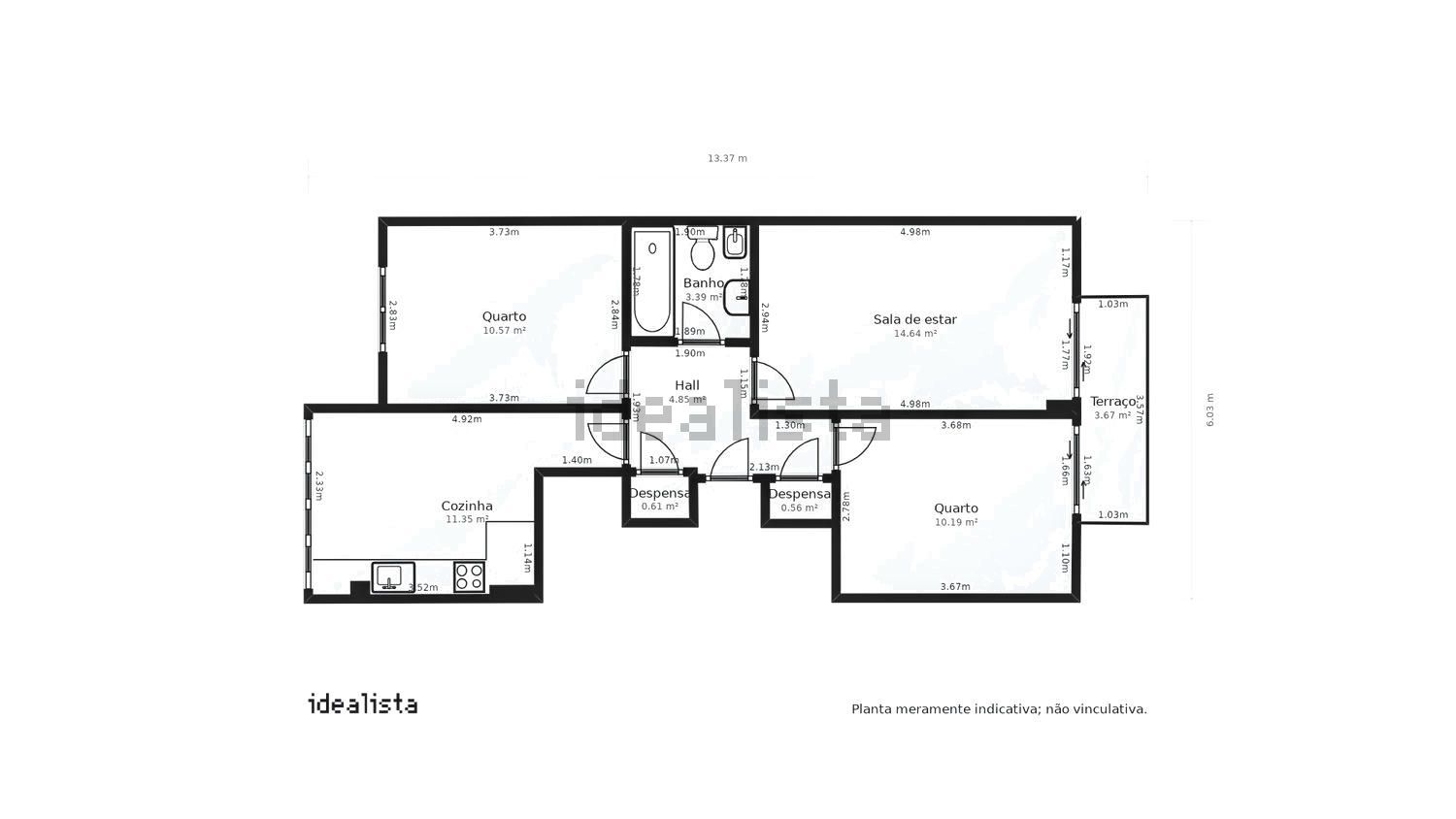
公寓 t2出售在Rua Conde Almoster, 24房源编号:34932182 本菲卡 T2 公寓,享有蒙萨诺壮丽景色!该公寓保存完好,更换了管道和电气装置,并翻新了厨房和浴室。木地板和双面采光,为所有房间提供充足的自然光,营造出温馨舒适的氛围。从阳台可以欣赏到蒙萨诺的美景,一年四季都有令人印象深刻的绿色树木和植被。本菲卡提供传统的社区生活,同时又靠近一切,附近有各种商店以及基本服务、学校、医院、自行车道、交通和绿地。主要特点:- 二楼公寓,位于一栋有两部电梯的建筑内- 客厅- 独立厨房,配有落地窗(与客厅相连,可选择将两个空间改造成开放式空间)- 两间卧室,可通往阳台- 带浴缸的完整浴室- 宽敞的入口大厅- 保存完好的木地板- 极佳的日照条件- 所有房间均享有充足的自然光其他特点:- 已更换管道和电力网络- 已进行翻新,厨房和浴室均为新装修- 厨房配有炉灶、烤箱、抽油烟机和热水器。- 享有蒙萨诺山脉的开阔视野- 保存完好的建筑- 楼宇附近停车方便优越的地理位置:- 直接通往 2ª Circular 和 Eixo Norte-Sul- 高效的公路交通网络- 距离 Sete Rios 和动物园仅几分钟路程- 距离机场和里斯本市中心仅几分钟路程- 靠近蒙萨诺森林公园- 附近有花园和许多绿地- 自行车道自住或投资的绝佳机会,因为这里是一个抢手的地点,公寓已准备好入住。立即安排您的参观!.
