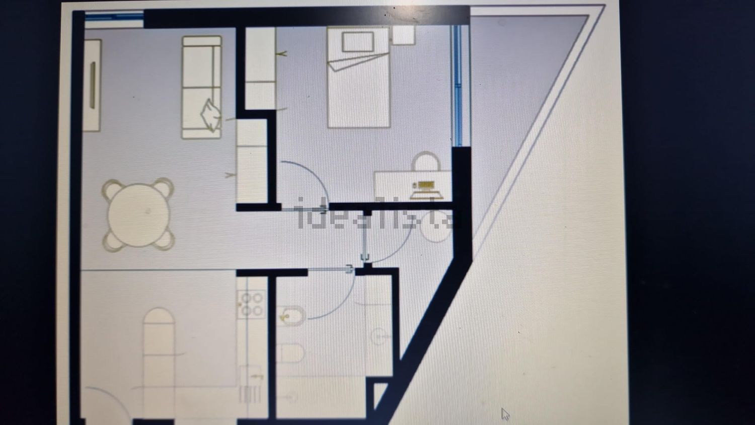
房源编号:34939497 RR 房产呈现一套优雅的 T1 公寓,面积 78 平方米,舒适、自然光和地理位置和谐统一。该房产维护状况极佳,以其宽敞的空间和温馨明亮的氛围脱颖而出。距离帕索德阿科斯火车站仅 5 分钟步行路程,地理位置优越,非常适合注重实用性、同时又不放弃宁静和品质的生活方式。虽然注册为地下室,但独特的地形构造使其在对面立面上拥有相当于三层楼的高度,能够全天获得极佳的日照,并享有微妙而迷人的海景。公寓状况良好,最近粉刷过,可立即入住。优越的地理位置:• 距离帕索德阿科斯火车站 5 分钟步行路程• 可快速通往 Marginal 大道和 A5 高速公路• 靠近海滩• 距离 Quinta da Fonte 和 Lagoas Park 10 分钟路程• 周边有商店和服务。无论是自住还是投资,都是理想之选。.

帕索德阿科斯两居室公寓——舒适、便利、实用隆重推出这套优雅的两居室公寓,位于帕索德阿科斯,地理位置优越,宁静与海滨的便利完美结合,尽享日常生活舒适。该住宅位于宁静的住宅区,地理位置优越,距离海滩仅几分钟路程,交通便利,周边有商店、学校和公共交通。起居区明亮通风,布局合理,客厅可直接通往阳台,是户外休闲的理想场所。厨房设备齐全,功能齐全,储物空间充足。私人区域设有两间带内置衣柜和充足自然光的卧室。此外,公寓还设有一间设施齐全的浴室、入口处的衣柜和一个宽敞的储藏室,提供实用的储物解决方案。为方便起见,住宅所有房间均配有空调,并设有安全入口门。这是入住奥埃拉斯最受欢迎的地区之一的绝佳机会,靠近大海,所有基本服务触手可及。立即预约您的参观,前来探索这处房产!.
帕索德阿科斯两居室公寓——舒适、便利、功能齐全我们为您呈现这套位于帕索德阿科斯(Paço de Arcos)的优雅两居室公寓,地处黄金地段,宁静与海滨的近距离完美融合,满足您的日常生活所需。该房产坐落于一个宁静的住宅区,周边环境优越,距离海滩仅几分钟路程,交通便利,附近还有当地商店、学校和公共交通。起居区明亮宽敞,布局合理,客厅可直接通往阳台,是享受户外时光的理想场所。厨房设备齐全,功能齐全,储物空间充足。私人区域设有两间带内置衣柜的卧室,采光充足。公寓还配有一间完整的浴室、入口门厅储物柜和一个宽敞的储藏室,提供实用的储物解决方案。为了增加舒适度,公寓所有房间均配备空调,并装有强化安全门。这是入住奥埃拉什(Oeiras)最抢手的地区之一的绝佳机会,靠近大海,所有必需服务近在咫尺。预约您的参观,前来发现这处房产!.
位于 Agrolongo 伯爵学院街 (Rua Instituto Conde de Agrolongo) 的一套极佳的三居室公寓,目前正在翻新中。这套公寓空间宽敞,采光充足,并设有多个阳台。公寓包括一间带浴室的套房和两间独立卧室。所有卧室均配有嵌入式衣柜,并可通往独立的阳台。此外,还有一间带淋浴的浴室、一个宽敞的客厅和一个设备齐全的开放式厨房。该公寓位于一栋维护良好的建筑内,配有电梯,位于一楼。地理位置优越,位于帕索德阿科斯 (Paço de Arcos),距离帕索德阿科斯火车站 (Estação de comboio de Paço de Arcos) 500 米,交通便利,可轻松搭乘各种公共交通工具,周边配套设施齐全,包括各类商店、学校、超市和餐厅。方便前往滨海大道 (Avenida Marginal)。这是您理想家园的绝佳机会!图片为项目效果图,目前正在施工中,过程中可能会有变动。我们将为您处理住房贷款事宜,为您节省时间,并提供市场上最优惠的解决方案和条件。我们是葡萄牙银行授权的信贷中介机构,编号为 0007143。本广告中的特点和信息需要与卖方确认,不具有约束力。.
三居室公寓 - 海景 - 阿科斯宫三居室公寓,可改建为四居室,面积 128 平方米,近期翻新,但仍有巨大潜力,只需少量投资即可改造成高端公寓。位于第 10 层,也是顶层,享有美妙的海景,位于奥埃拉斯的优越地段,在 Tapada do Mocho / Paço de Arcos。这套美妙的四居室公寓采光极佳,朝向东/南。它位于该开发区标志性建筑之一,配有 2 部电梯、会议室和位于 0 层的宽敞储藏室,位于一条安静的死胡同街道上,停车位充足。地理位置优越,交通便利,距离阿科斯宫火车站仅 4 分钟路程,距离奥埃拉斯公园、诗人公园、奥埃拉斯卢兹医院仅 3 分钟路程,距离新 SBE 大学仅 10 分钟路程,以及各种商业中心、超市、药店、商业区、餐厅、国际学校和阿科斯宫海滩近在咫尺。可轻松前往主要公路,如 A5 高速公路和沿河的 Marginal 大道,以及阿科斯宫海滩。组成:入口大厅、客厅和餐厅、带储藏室的厨房、3 间带河景/海景的卧室、其中 2 间卧室带阳台、2 间设施齐全的浴室和位于 0 层的储藏室。.
房产识别:ZMPT587706帕索德阿尔科斯中心 - 欧伊拉斯 3 卧室公寓我们在此介绍位于帕索德阿尔科斯中心(欧伊拉斯市最受欢迎的区域之一)的这套 3 卧室公寓。该房产潜力巨大,非常适合全面翻新,可根据您的需求量身定制空间。主要特点:• 3 间卧室;• 带封闭式画廊的客厅;• 厨房;• 2 间浴室;• 2 个封闭式画廊,增加了房产的多功能性;• 待翻新公寓,非常适合个性化或投资。地理位置 – 帕索德阿尔科斯,欧伊拉斯:• 位于市中心,步行几分钟即可到达商店、餐馆和服务场所;• 距离海滩仅 5 分钟路程,非常适合享受欧伊拉斯海岸线;• 靠近卡尔卡维洛斯的 NOVA 商学院;• 区域内有学校,包括卡尔卡维洛斯的圣朱利安学校,并且方便前往里斯本和卡斯凯什;• 公共交通便利,公路交通发达。面积:• 92 平方米(建筑面积)理想选择:• 寻找需要翻新和个性化住房的人;• 寻求在高需求区域获得回报的投资者;• 重视市中心和靠近大海位置的人。预约您的参观,不要错过这个机会。请联系我们获取更多信息或安排实地参观。在您寻找家的过程中,我们始终与您同在。选择 Zome 的 3 大理由+ 支持Zome 的顾问在房地产市场拥有独特的培训和经验,他们致力于为您提供最佳的支持。他们以最大的信心引导您走向最适合您需求和抱负的方向。我们将建立密切的关系,并仔细倾听您的期望,因为您的幸福是我们的首要任务!重要的是您感到受到支持,并且我们始终与您同在。+ 简单Zome 的顾问在市场拥有独特的培训,基于专业人士之间的实践经验分享,并辅以应用神经科学的知识,使他们能够简化并更有效地提升您的房地产体验。抛开繁琐的官僚程序,在 Zome,您将获得一个经验丰富、多学科团队的全方位支持,他们将在所有关键方面为您提供实际帮助,确保您的房地产体验超出预期。+ 快乐摆脱烦恼,腾出宝贵的时间,专注于让您更快乐的事情。我们每天都在努力通过您所需的可靠建议为您的生活增添更多价值,共同实现最佳成果。有了 Zome,您永远不会感到迷茫或孤立无援,您将找到无价之宝:您的最大安心!这就是您在整个过程中将感受到的:平静、安全、舒适……以及快乐!备注:• 如果您是房地产顾问,此房产可供合作。请随时向您的买家客户推荐,并联系我们安排参观。• 为方便识别此房产,请提及相应的 ZMPT ID 或向您推荐此房产的代理人。.
一居室公寓在建,带盒子新开发项目正在建设中,预计五月底完工由16套公寓组成,分布在两个结构独立的地块上,确保更高的隐私和排他性共有6层(4层住宅楼和2层带包厢停车楼)两部电梯(6人和7人)可用类型学:T1T2和T3 这些分区以功能和谐的方式分布,明确区分了社交区与私人区,确保舒适和隐私 社交区带内置衣柜的入口大厅通向一个带有厨房的开放式大客厅和餐厅厨房采用现代设计,配备博世内置电器,确保品质与效率客厅和厨房可直接通向公共阳台,促进自然采光并与外界保持联系 私人区域公寓最封闭的区域包括两个套房,均可通向公共阳台卫生设施宽敞,配备淋浴设施,注重舒适与实用入口大厅(内置衣柜),区域组织良好,社交与私人区域分明,自然采光充足部分两居室单元包含私人露台所有公寓均设有专用包厢,用于为电动汽车充电B地块(东西向)和A地块(东南西)阳光充足,设有阳台和开阔的城市环境完赛地图:PVC框架配双层玻璃等温电动百叶窗阳台护栏和玻璃露台空调热泵光伏板高安全防护门视频对讲机家庭自动化系统室内: 卧室客厅走廊和厨房的悬浮地板,室内门和衣柜涂白色漆面,配备博世电器的全套厨房,Silestone 台面,陶瓷地板和瓷砖的厕所,挂墙式马桶,Grohe 水龙头外观:阳台和露台铺有陶瓷地板,配备独立充电设施的电箱位置距离海边步行约10分钟,且可快速到达里斯本和卡斯凯什该区位于奥埃拉斯市的阿科斯广场,介于里斯本和卡斯凯什之间,以高生活质量靠近海边和强大的商业活力而闻名步行约10分钟即可到达奥埃拉斯-卡斯凯斯海滨长廊,连接线路的海滩极佳的通达性:与A5的直接连接边缘大道(EN6)卡斯凯斯线火车站里斯本和卡斯凯什大约15分钟车程周边有传统商业超市药房公立和私立学校Oeiras公园购物中心,以及靠近Taguspark和Lagoas Parque等商业中心装饰图片具有说明性 能源率: A+ ref: APTHS041.1.
福鲁姆奥埃拉什(Fórum Oeiras)明亮三居室公寓 – 黄金地段这间宽敞的公寓位于奥埃拉什(Oeiras)最抢手的区域之一,坐落于著名的福鲁姆奥埃拉什(Fórum Oeiras)大楼内,距离奥埃拉什公园购物中心(Oeiras Parque shopping center)、圣路易斯医院(Hospital da Luz)和美丽的诗人公园(Parque dos Poetas)仅几步之遥。周边遍布当地商店和服务,完美融合了舒适、便利和生活方式。这间阳光充足的三居室公寓布局精心,每个房间都享有充足的自然光线。主要特色:2个私人停车位储藏室2部电梯公共屋顶休息室客厅和主套房均设有阳台装修与设备:卧室和客厅铺设浮动木地板厨房和浴室铺设瓷砖厨房配有木制橱柜和石材台面设备齐全,包括:燃气灶通风式电烤箱抽油烟机洗衣机洗碗机嵌入式冰箱/冰柜组合双层玻璃窗空调优越的交通便利性:快速通往 A5 高速公路、沿海公路(marginal)以及卡斯凯什(Cascais)海滩。不要错过这个在奥埃拉什(Oeiras)最理想的地区居住或投资的绝佳机会。请联系我获取更多信息或安排看房!.
公寓 t1出售在Rua Adriano José da Silva s/n