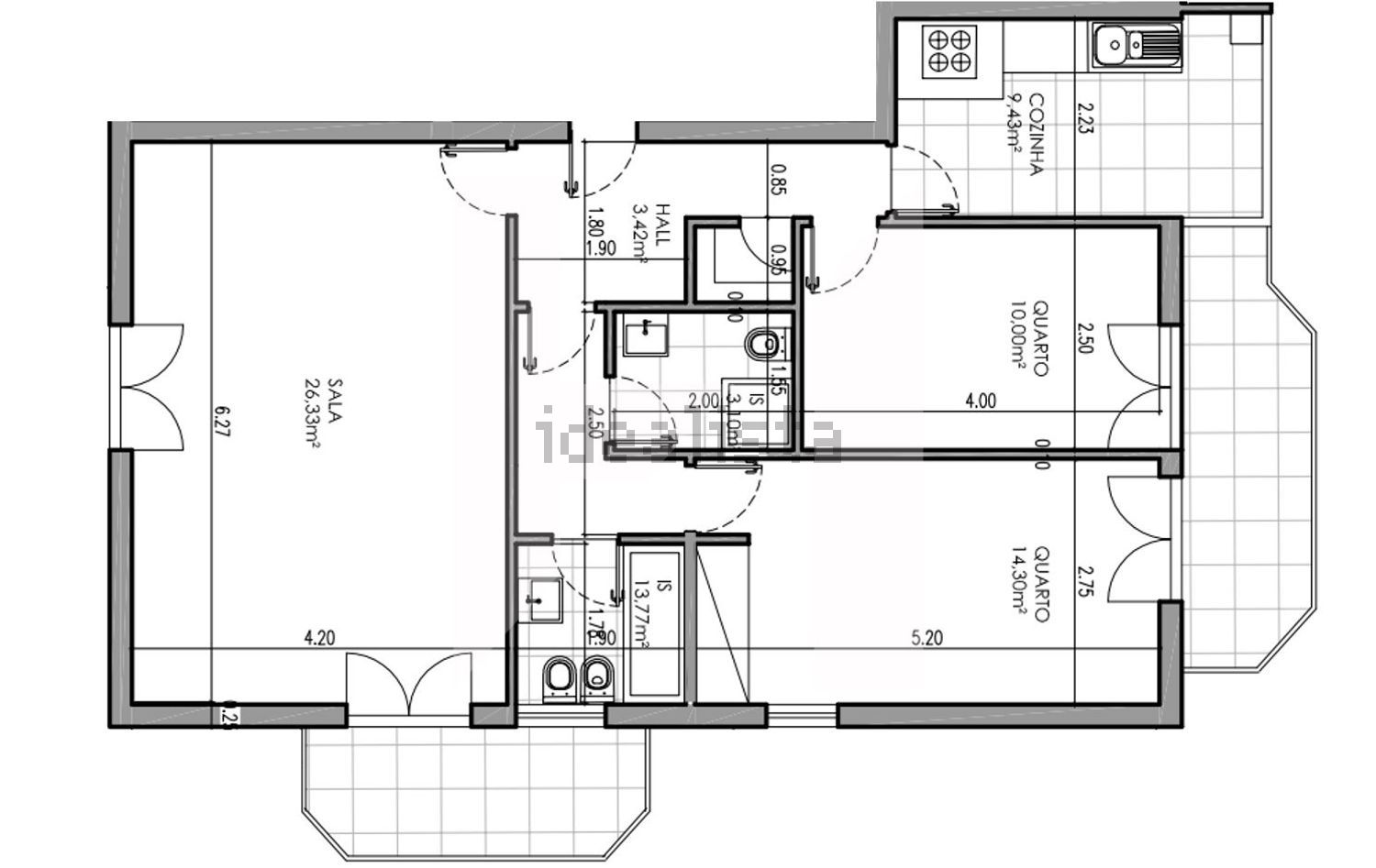
公寓 t2出售在Praceta José Malhoa, 20房源编号:34934795 蒙特阿布拉昂明亮两居室公寓 - 舒适实用探索位于蒙特阿布拉昂的这套现代两居室公寓,已全面翻新,是寻求实用、位置优越、可拎包入住的家的理想选择。公寓布局均衡,拥有宽敞明亮的客厅,非常适合放松或招待客人。现代化的设备齐全的厨房设计高效实用,方便日常生活。公寓朝东、朝南、朝西,全天采光充足,营造出明亮温馨的室内环境。两间卧室都舒适且采光良好,可轻松满足不同需求。该房产还设有两间设施齐全的浴室,增加了便利性和实用性。阳台和封闭式玻璃阳光房延伸了居住空间,让您充分享受自然光。阳台还享有海景,这是该房产的独特价值所在。公寓位于蒙特阿布拉昂,坐落在一个成熟的住宅区内,靠近公共交通、当地商店和基本服务设施,确保了便利且交通便利的生活方式。主要特点:• 全面翻新,可拎包入住• 绝佳日照(朝东、朝南、朝西)• 带海景的阳台• 两间设施齐全的浴室• 设备齐全的厨房• 空调和加固安全门这套公寓是自住、首次购房或投资的理想选择,它在地理位置、自然光照和功能性方面取得了平衡。.
