
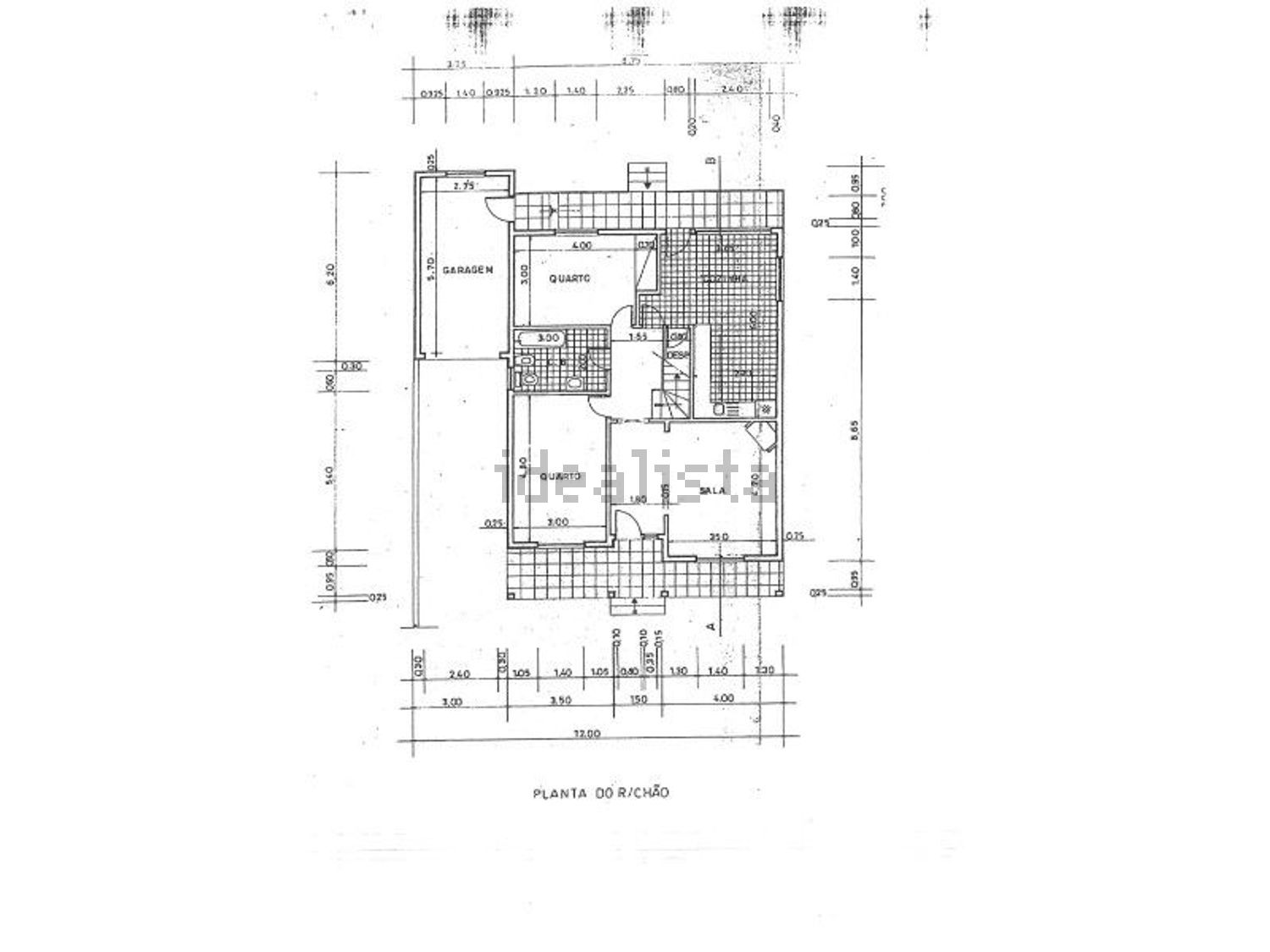
在建的四居室住宅,拥有现代建筑风格,位于圣克鲁斯/西尔维拉(托雷斯韦德拉什)的优越地段,距离海滩仅几分钟路程。非常适合那些在海边寻找新房的人,拥有绝佳的日照和高品质的建筑。其特色是两层楼的实用布局,旨在提供舒适、生活品质和家庭幸福。底层设有一个宽敞的开放式客厅,非常适合社交和家庭时光,一个集成式厨房,一间带内置衣柜的卧室(非常适合作为书房或客房),一间完整的浴室和一个实用的储藏室。楼上设有三间宽敞的套房,均带步入式衣橱和阳台,确保隐私、充足的自然光和优质的舒适度。户外,住宅设有一个宜人的庭院,可建造游泳池,非常适合享受阳光明媚的日子,还有一个用于车库的空间。该房产拥有 A+ 能源认证,确保高能源效率、热舒适度和能源成本降低。这是在西部地区自住或房地产投资的绝佳机会。不要错过这个机会——立即预约您的参观!注意:所展示的照片对应于两栋联排别墅的项目,目前仅有一栋在建。我们是葡萄牙银行授权的信贷中介机构,编号为 0008055。我们帮助您快速、透明地完成您的流程,完全根据您的需求量身定制,无需官僚程序,也无需额外费用。需要帮助寻找最佳信贷解决方案?请联系我们。提供的信息仅供参考,不具约束力,不免除咨询中介的义务。如需更多信息,请联系:Hugo SantosMario FilipeImocruz 代理机构 AMI 24151。.
小楼房或独栋别墅出售在Centro