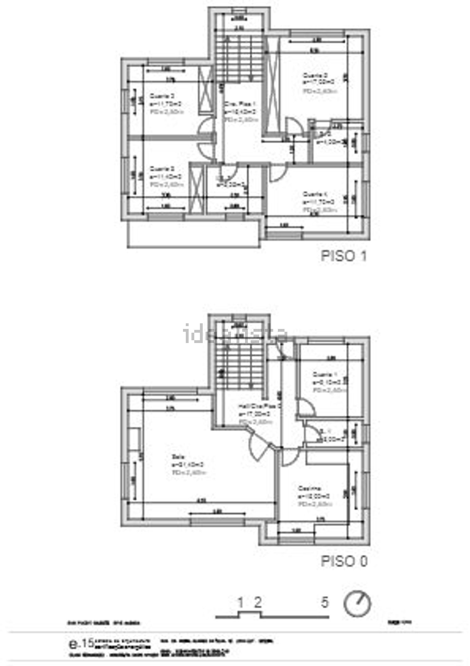
小楼房或独栋别墅出售在Rua Pulido Valente, 14房源编号:34950023 在舒适与优雅之间,阿尔马达中心迎来了一个独特的机会。这座建于2008年并经过翻新的杰出别墅,提供现代化的居住体验,每一个细节都经过精心设计,以提升日常生活品质。总建筑面积296平方米,其宽敞的空间和房屋不同区域之间的流畅过渡尤为突出。室内,我们发现:• 五间宽敞的卧室,包括一间享有舒适和宁静的私人套房• 一间带壁炉和热能回收器的宽敞客厅,是营造精致温馨氛围中社交的理想场所• 优质的装修,主要区域铺设强化地板,确保了美学和谐和热舒适性技术配置也达到了高标准:• 带热断桥的铝合金窗框,确保能源效率和隔音效果• 空调、报警系统、中央吸尘和消防安全系统的预装室外,该物业还设有一个约100平方米的车库,对于重视空间、功能性和多功能性的人来说,这是一个真正的优势。该物业位于阿尔马达拉兰热罗和费约的战略位置,距离特茹河大桥仅5分钟路程,将住宅区的宁静与里斯本的便利相结合,交通便利,服务齐全。⚠️ 这是一个购买几乎全新房屋的机会,拥有现代化的设施和巨大的升值潜力。.
