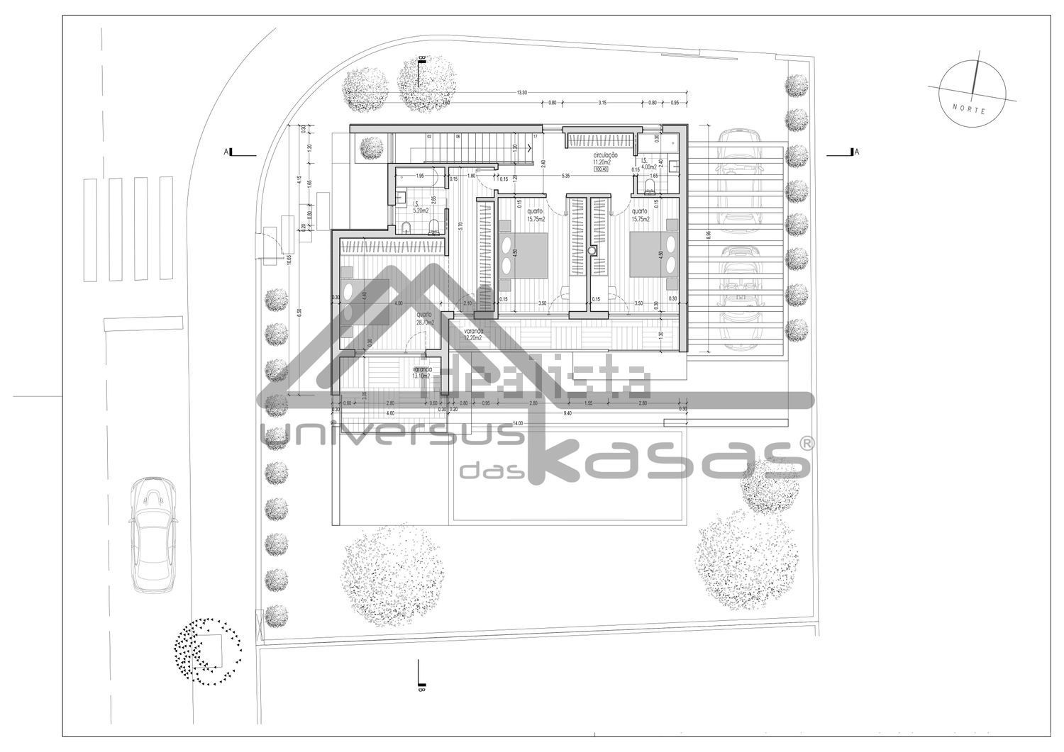
小楼房或独栋别墅出售在Travessa Joaquim Fernandes Chula房源编号:34935089 位于帕尔梅拉艾尔斯(Aires, Palmela)的全新独立式 V4 住宅,建筑面积 220 平方米,地块面积 505 平方米。整个房产拥有极佳的自然采光,并具备以下特点:0 层:* 5.80 平方米的入口门厅,带嵌入式衣柜。* 11.80 平方米的厨房,带漆面橱柜,设备齐全。* 39.45 平方米的开放式客厅/餐厅,可通往庭院。* 3.80 平方米的卫生间,带淋浴。* 1 间 13.30 平方米的卧室/书房。* 1 间 5.90 平方米的设备区。1 层:* 11.20 平米的卧室门厅。* 1 间 28.70 平方米的豪华套房,带复合地板,2 个嵌入式衣柜,可通往 13.10 平方米的阳台。* 5.20 平方米的豪华套房卫生间,带浴缸。* 1 间 15.75 平方米的卧室,带复合地板,嵌入式衣柜,可通往 12.20 平方米的阳台。* 1 间 15.75 平方米的卧室,带复合地板,嵌入式衣柜,可通往 12.20 平方米的阳台。* 4.00 平方米的卫生间,带淋浴。外部:* 可停放 2 辆车的停车区。* 游泳池。* 36.50 平方米的庭院。* 花园。注意:该住宅配备空调、用于热水加热的太阳能电池板和自动门。摄影报道即将发布。该住宅位于一个高档的住宅区。我们将处理您的信贷流程,为每位客户提供最佳解决方案。不要错过这个商业机会,立即预约您的参观。.
