公寓 t4出售在Rua Fernão de Magalhães

420,000 欧

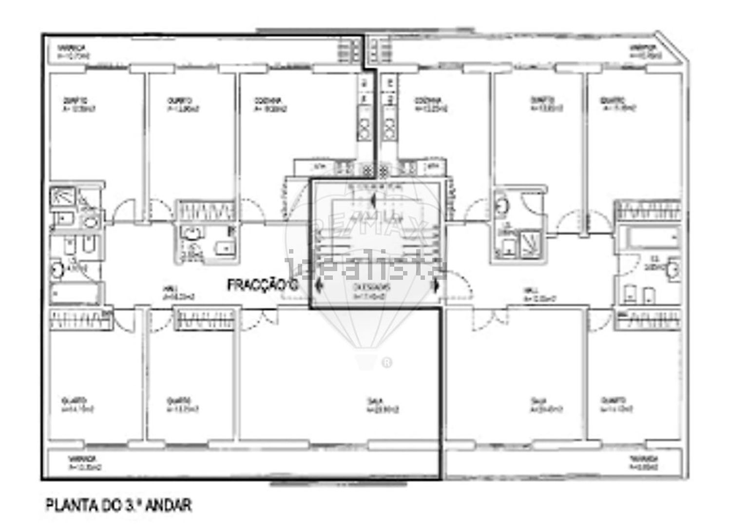
描述

Cascalheira - Venda do Alcaide, Pinhal Novo

房源编号:34942834   

基本特点

  • 196平方米建筑面积, 150平方米可使用
  • T4
  • 3个卫生间
  • 二手/状态良好
  • 建在2012

楼房

  • 3层
  • 无电梯

能源证书

  • 能源等级:e

位置

里斯本都会区 塞尔巴图区 Pinhal Novo

中介信息

此信息来自于 中介 发布

姓名:Remax Collection Vantagem Aqua
电话:+351 265 146 046
如果您葡语或英语OK(主要是葡语,很多当地人不说英语),并且已经在葡萄牙境内(通常房东不会接听来自境外的国际长途),可自行拨打电话联系。

找我们帮忙

或者您可以添加微信,我们帮您联系(免费的)