双拼别墅出售在Rua João Pedro de Almeida Mota

550,000 欧

描述

Pinhal do General, Fernão Ferro

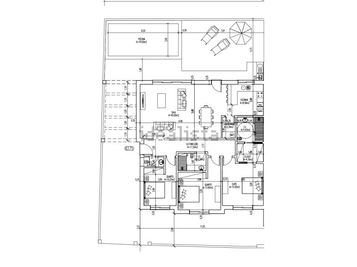
房源编号:34950016    全新联排别墅,位于费尔南奥·费罗的 Pinhal General,地段安静且交通便利。该物业占地 320 平方米,实用面积为 142 平方米,布局功能齐全且现代化。起居空间采用开放式设计,整合了客厅和厨房,营造出宽敞明亮的感觉。设有 3 间卧室,包括带衣帽间的套间卧室,2 间浴室和独立的洗衣房。户外设有游泳池和烧烤区,是休闲和社交的理想场所。能源等级:A+参考号:AR0745。.

基本特点

  • 双拼别墅
  • 142平方米建筑面积
  • T3
  • 3个卫生间
  • 面积320平方米
  • 二手/需要装修

能源证书

  • 能源等级:a+

位置

里斯本都会区 塞尔巴图区 Fernão Ferro

中介信息

此信息来自于 中介 发布

姓名:Área Restrita Imobiliária
电话:+351 21 874 0804
如果您葡语或英语OK(主要是葡语,很多当地人不说英语),并且已经在葡萄牙境内(通常房东不会接听来自境外的国际长途),可自行拨打电话联系。

找我们帮忙

或者您可以添加微信,我们帮您联系(免费的)