双拼别墅出售在Centro

595,000 欧

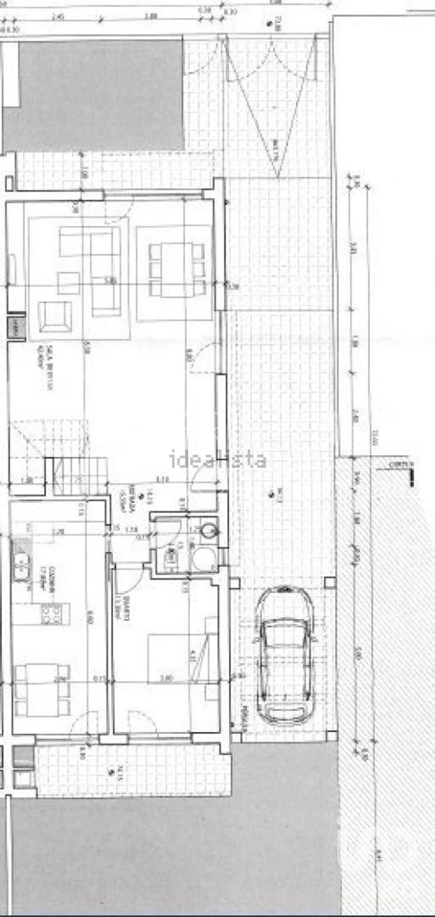
描述

Fernão Ferro

房源编号:34947622   

基本特点

  • 双拼别墅
  • 2层
  • 250平方米建筑面积, 170平方米可使用
  • T4
  • 3个卫生间
  • 面积255平方米
  • 露台和阳台
  • 新楼盘
  • 嵌入式衣柜

装备

  • 空调
  • 游泳池

项目能源证书

  • 能源等级:a+

位置

里斯本都会区 塞尔巴图区 Fernão Ferro

中介信息

此信息来自于 中介 发布

姓名:Propriedade Convergente Unipessoal Lda
电话:+351 265 093 847
如果您葡语或英语OK(主要是葡语,很多当地人不说英语),并且已经在葡萄牙境内(通常房东不会接听来自境外的国际长途),可自行拨打电话联系。

找我们帮忙

或者您可以添加微信,我们帮您联系(免费的)