房源编号:34957234
**现代住宅位于孔德庄园 - 不容错过的机会!** 探索这栋令人惊叹的独立式住宅,非常适合那些寻求舒适和便利的人。该住宅地理位置优越,位于孔德庄园,可快速通往主要道路,仅需 20 分钟即可到达里斯本。216 平方米的建筑面积经过巧妙布局,设有三间宽敞的卧室和三间浴室,确保全家人的隐私和便利。亮点是宽敞的空间延伸至美丽的花园,非常适合休闲和放松的时光。烧烤区非常适合与朋友和家人一起享受愉快的户外烧烤。此外,住宅还设有露台和阳台,提供宜人的景色和舒适的环境。内置衣柜和储藏室,存储空间将不再是问题。靠近商店、服务和学校,使该房产对重视日常便利性的人来说更具吸引力。该住宅建于 2002 年,状况良好,是那些寻找现代实用住宅的人的绝佳选择。不要错过参观这处集生活品质和便利性于一体的房产的机会!.
探索这座极佳联排别墅的舒适与宁静,非常适合追求生活品质的人们!✨ 主要特色:3间宽敞明亮的卧室温馨的客厅,是家庭时光的理想场所功能齐全且设备完善的厨房阁楼,用途多样(办公室、额外卧室或休闲区)私人户外空间,非常适合聚会或放松位于Quinta do Conde宁静的区域,交通便利,可轻松前往里斯本和塞图巴尔,靠近商店、学校、服务设施和海滩,这里是您舒适便捷生活的理想家园。 不要错过这个机会!立即预约您的参观,来看看您的未来之家。.
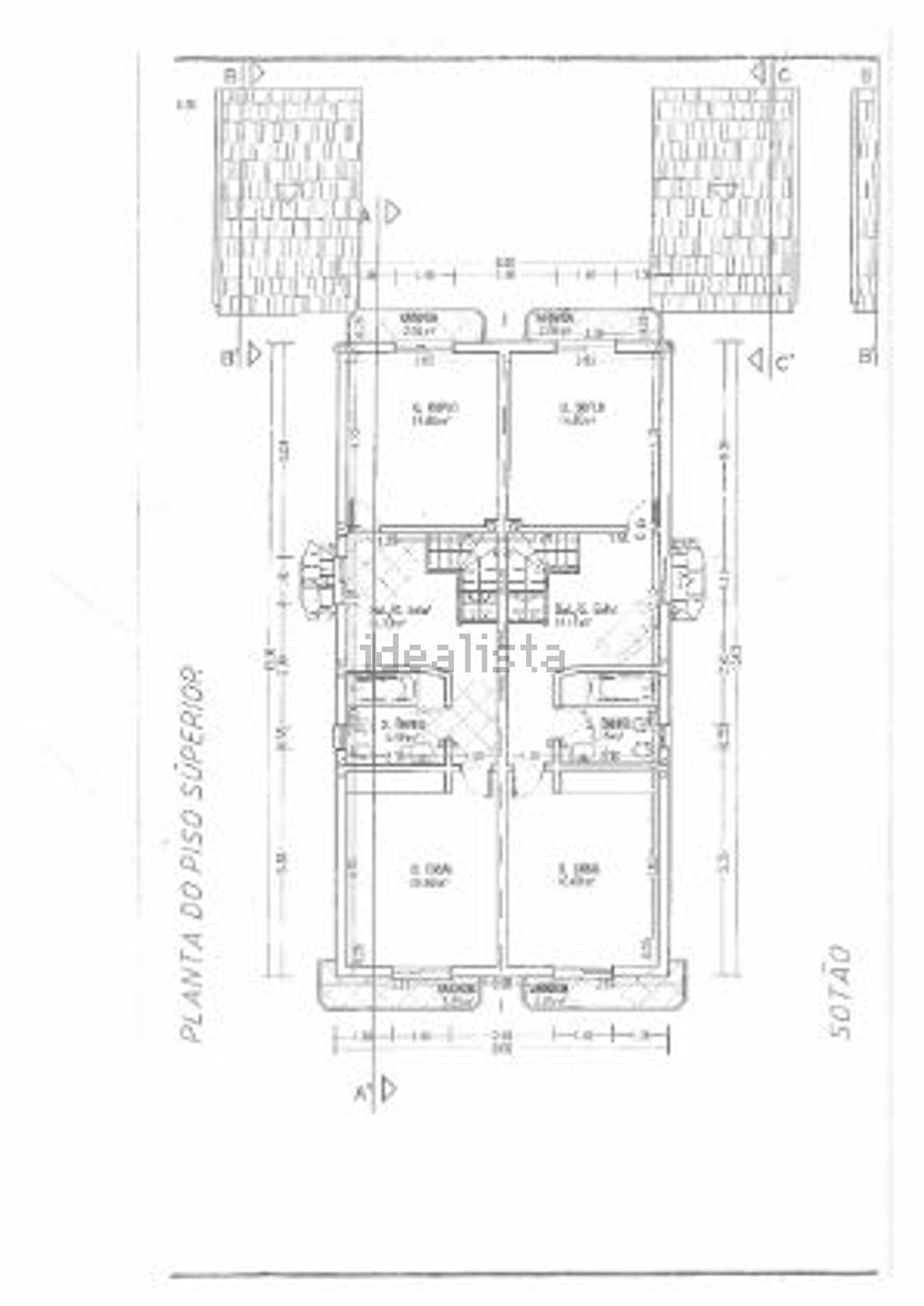
位于 Quinta do Conde 的三卧室转角房屋,坐落在一个宁静的住宅区,靠近商店和服务。该房屋的突出特点是其 B 级能源认证,拥有 4 块光伏电池板用于发电,客厅和卧室配有空调,确保了舒适和能源效率。房屋朝向良好,朝南的庭院大部分时间都能享受阳光。 主要特点建筑面积:108 平方米实用面积:92.10 平方米室外面积:42 平方米户型:3 卧室建成年份:2001 年状况:二手 / 良好能源认证:B 布局底层:带壁炉和热回收器的客厅厨房储藏室带淋浴的浴室带烧烤设施的前后院一楼:3 间卧室(其中一间带嵌入式衣柜)带浴缸的完整浴室可通过可拆卸楼梯进入阁楼阁楼:带 Velux 窗户的空调空间额外的浴室 配套设施4 块光伏电池板客厅和卧室配有空调带热回收器的壁炉阳台阁楼带烧烤设施的庭院优越的朝向 地理位置Quinta do Conde 位于塞辛布拉市,提供优质的生活,结合了宁静和靠近所有服务:学校、超市和商店医疗服务和绿地通往里斯本的良好公路交通,距离 Coina 火车站 4.5 公里距离主要海滩不到 30 分钟车程:阿尔布费拉湖塞辛布拉海滩梅科海滩.