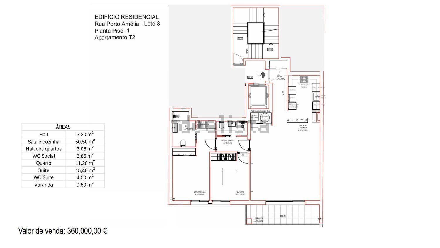
公寓 t2出售在Rua Porto Amélia, 3房源编号:34942713 坐落于普里奥尔维略(Prior Velho)的中心地带,位于波尔图阿梅利亚街(Rua Porto da Amélia)3号的建筑,融入了一个正在经历强烈改造和升值的城市区域。该建筑的特点是采用了优质的建筑技术,并由中高档装修的T2户型公寓组成。- 拥有宽大的玻璃窗,配有隔热断桥窗框和双层玻璃,促进自然光线的进入,并提供出色的能源效率。- 配备了外墙保温系统(Cappotto)、自动强制通风系统、用于生活热水的集热器以及空调预装,以确保最大的便利性和舒适性。- 公寓内部布局极佳,优先考虑家庭的休闲和社交空间,宽敞的开放式厨房/客厅,并延伸至室外空间(宽敞的阳台)。在这间T2户型公寓内,您会发现:- 一间宽敞的客厅,50.50平方米,开放式设计,配有配备高端电器和热压层压板橱柜的全套厨房,可通往一个9.50平方米的阳台。- 卧室,11.20平方米,配有嵌入式衣柜。- 套房,15.40平方米,配有嵌入式衣柜。- 公共浴室,3.85平方米,配有超薄淋浴底座,以及“Sanitana”品牌的悬挂式洁具和“Groh”品牌的龙头。- 套房浴室,4.50平方米,配有超薄淋浴底座和卫生套件,以及“Sanitana”品牌的悬挂式洁具和“Groh”品牌的龙头。- 带嵌入式LED射灯的假天花板。- 乙烯基地板。- 所有木制品均采用白色烤漆。- 空调预装(设备为选配)。.
