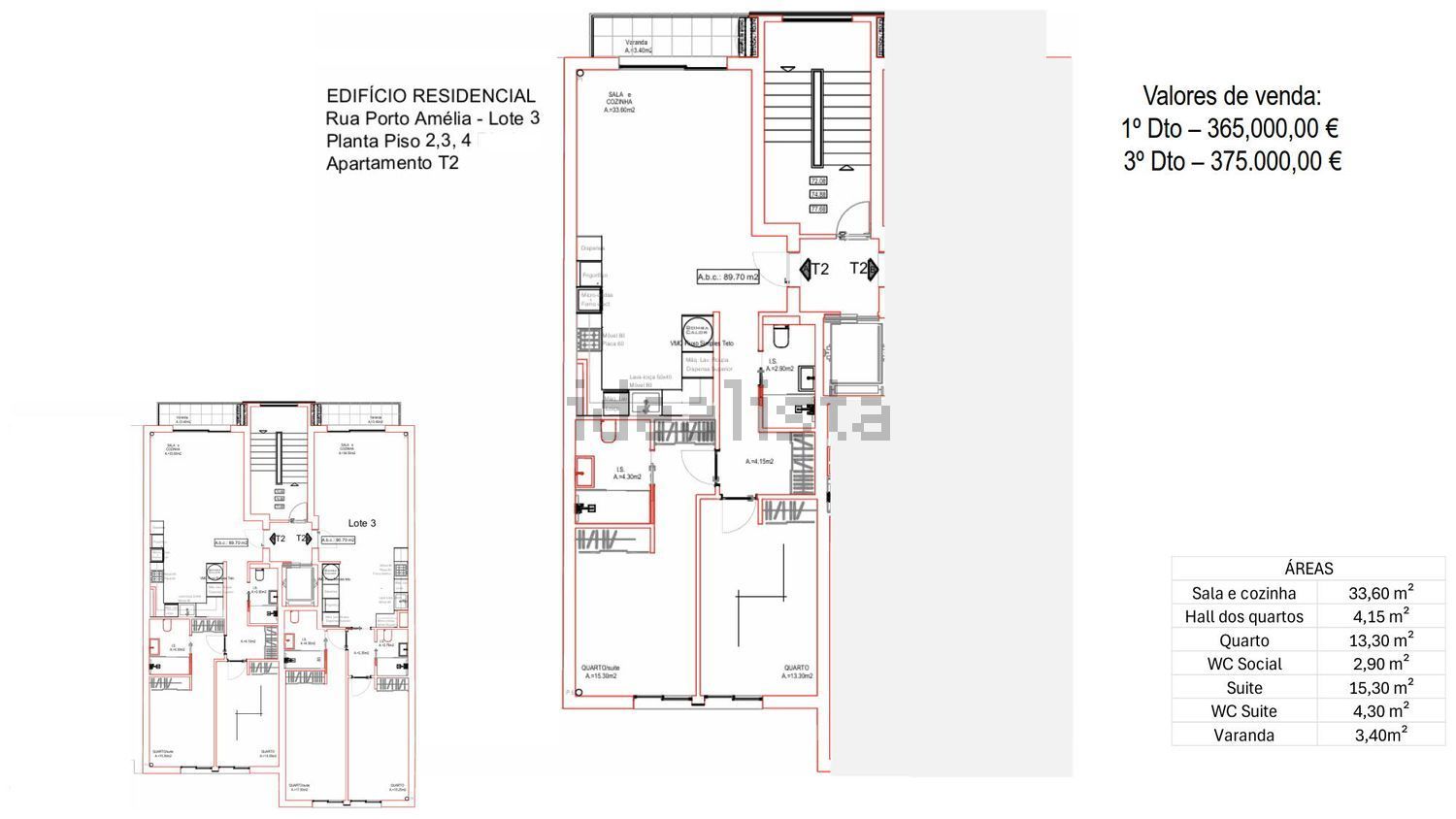
公寓 t2出售在Rua Porto Amélia, 3房源编号:34942682 位于普里奥尔老城中心,为波尔图阿梅利亚街9号设计的建筑,融入了一个正在强力改造和升值的城市区域。该建筑以其精湛的建筑技术为特色,由T2户型公寓组成,装修标准高于平均水平。- 拥有宽大的玻璃窗,配有隔热断桥窗框和双层玻璃,促进自然光线进入,并提供出色的能源效率。- 配备了外墙保温系统(Cappotto)、自动强制通风系统、用于生活热水的集热器以及空调预装,以确保最大的便利性和舒适性。- 公寓内部布局极佳,优先考虑家庭休闲和社交空间,宽敞的开放式厨房/客厅,并延伸至室外空间(宽敞的阳台)。在这套T2户型公寓内,您将找到:- 一个宽敞的客厅,32.40平方米,开放式设计,配有设备齐全的高端电器和热压层压板橱柜,可通往一个4.00平方米的阳台。- 卧室,13.95平方米,带嵌入式衣柜。- 套房,15.90平方米,带嵌入式衣柜。- 公共浴室,2.95平方米,配有超薄淋浴盘和“Sanitana”品牌的悬挂式洁具,以及“Groh”品牌的龙头。- 套房浴室,4.95平方米,配有超薄淋浴盘和卫生套件,“Sanitana”品牌的悬挂式洁具和“Groh”品牌的龙头。- 带嵌入式LED射灯的假天花板。- 乙烯基地板。- 所有木制品均采用白色烤漆。- 空调预装(设备为选配)。.
