双拼别墅出售在Rua do Gil Ferreira 7 -, 12

460,000 欧

描述

Lourinhã e Atalaia, Lourinhã

房源编号:34929460   

基本特点

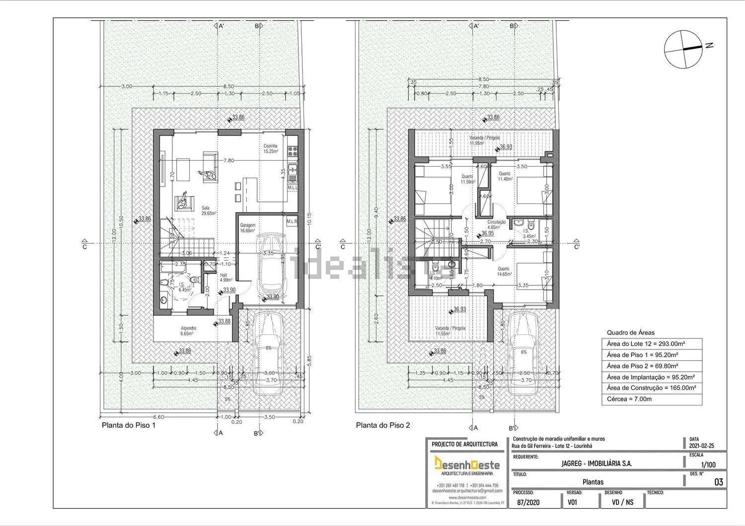
  • 双拼别墅
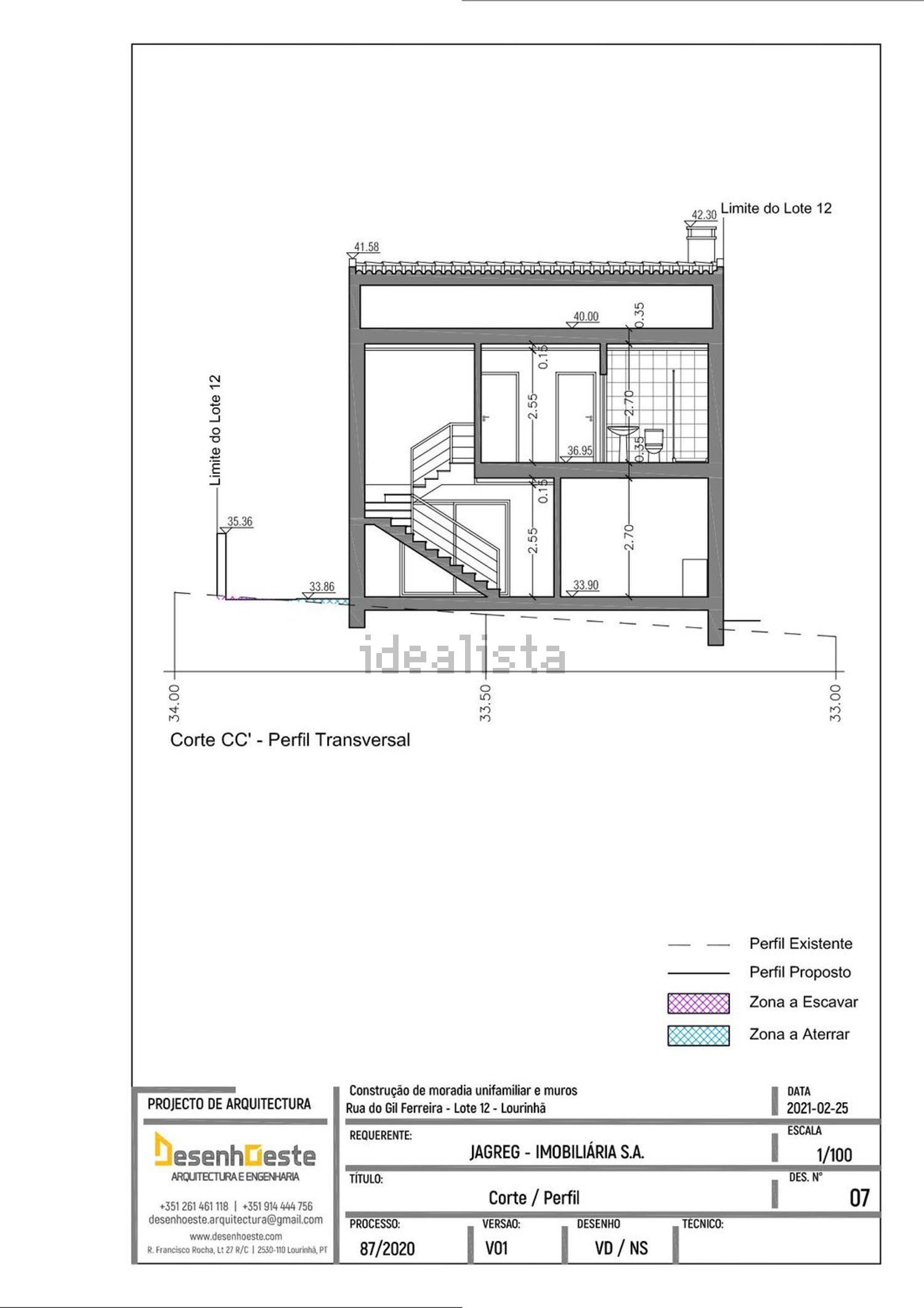
  • 2层
  • 190平方米建筑面积, 158平方米可使用
  • T3
  • 3个卫生间
  • 面积293平方米
  • 露台
  • Parking space included in the price
  • 新楼盘
  • 嵌入式衣柜
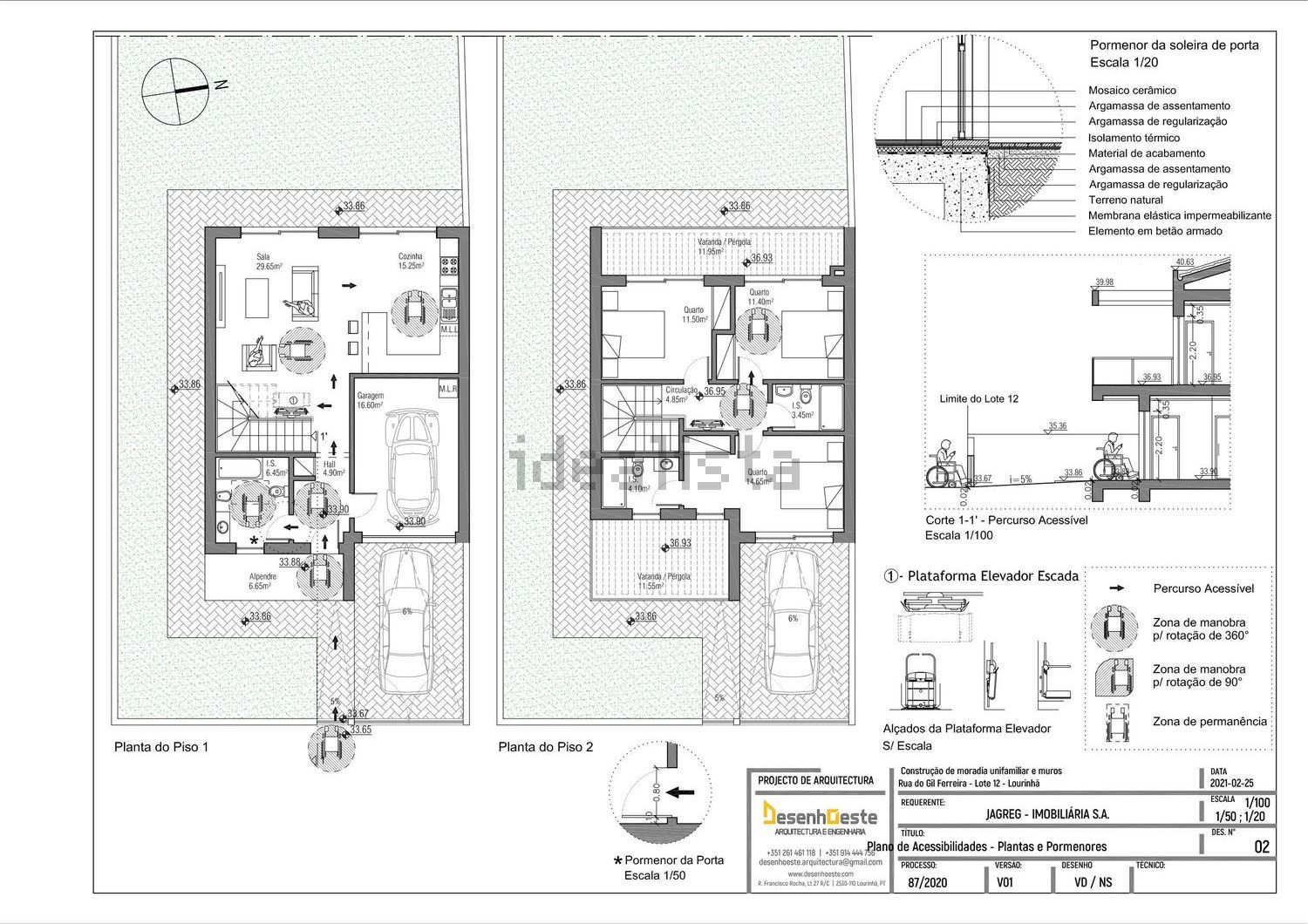
  • 适合行动不便人士使用的通道和住房

装备

  • 空调
  • 花园

项目能源证书

  • 能源等级:a

位置

里斯本都会区 里斯本地区 Lourinhã e Atalaia

中介信息

此信息来自于 中介 发布

姓名:ZORZATO & OLIVEIRA, LDA
电话:+351 244 219 623
如果您葡语或英语OK(主要是葡语,很多当地人不说英语),并且已经在葡萄牙境内(通常房东不会接听来自境外的国际长途),可自行拨打电话联系。

找我们帮忙

或者您可以添加微信,我们帮您联系(免费的)